Kauf Wohnung Etagenwohnung Vermietet

Renditeimmobilie mit Balkon am Möbiusplatz

04109 Leipzig · Reudnitz · Reudnitz- Ein Stadtteil Leipzigs, bei dessen Namen jeder sofort an das Reudnitzer Bier denkt, welches in der hier ansässigen Brauerei hergestellt wird. Dabei hat das 2 km² große Reudnitz noch viel mehr zu bieten. So gibt es neben zahlreichen modernisierten Gründerzeithäusern jahrhunderte alte Fabrikhallen, die auf die vergangene industrielle Blütezeit Reudnitz’ verweisen. Zwischen diesen zahlreichen historischen Bauwerken befinden sich liebevoll angelegte Grünanlagen, die der Naherholung dienen. Für die rund 20 000 Einwohner dieses Stadtteils gibt es genügend kleinere und größere Einkaufsmöglichkeiten, Schulen, Kindertagesstätten und Arztpraxen, die sich beispielsweise in der Dresdner Straße, der Riebeckstraße, aber auch in vielen anderen Nebenstraßen befinden und fußläufig zu erreichen sind.

Straße und Hausnummer werden nicht öffentlich angezeigt. Die vollständige Adresse erhalten Sie auf Anfrage.

Kaufpreis

113.000,00 €

Zimmer

1,00

Wohnfläche

43,68 m²

Status

Vermietet

Bildergalerie

13 Bilder

Fakten

Eckdaten zur Immobilie

Zimmer

1,00

Wohnfläche

43,68 m²

Nutzfläche

43,68 m²

Etage

0

Etagenanzahl

4

Badezimmer

1

Grundriss

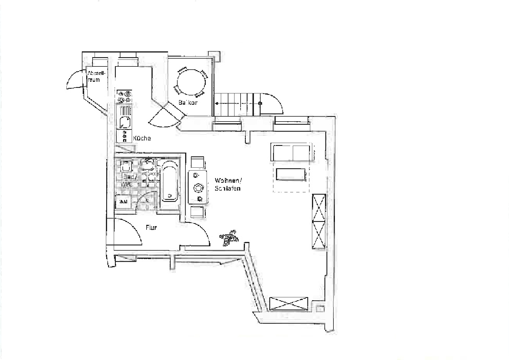
Grundrisse und Raumaufteilung

1 Grundriss

Beschreibung

Objektbeschreibung

Zum Verkauf steht eine gut geschnittene Wohnung im Hochparterre in Leipzig Reudnitz mit ca. 44 m² Wohnfläche. Die Wohnung überzeugt durch einen großzügiges Wohn- und Schlafzimmer, bei dem der Schlafbereich räumlich abgegrenzt werden kann. Die Erdgeschosslage ermöglicht einen bequemen Zugang. Die Wohnung eignet sich aufgrund ihrer Größe ideal für Kapitalanleger. Das Objekt befindet sich in einem gepflegten Mehrfamilienhaus in
attraktiver Lage mit guter Infrastruktur und Anbindung.

Ausstattung

Ausstattung und Merkmale

- pflegeleichter Kunststoffboden in der Küche, Fliesenboden im Bad
- der Rest der Wohnung wurde nachträglich mit Laminatböden ausgestattet
- Bad mit Wanne
- ruhiger Balkon mit Hofblick und direktem Zugang zum Hof

Rechtliche Hinweise und Haftung

Die hier gemachten Angaben beruhen auf Aussagen Dritter, für die der Makler keine Haftung übernimmt. Der Miteigentumsanteil beträgt 47,50/1000.